卓越前海壹號室內軟裝設計新動態
發布人:Webmaster發布時間:2017-06-03閱讀數 (1641)
卓越前海壹號位于前海桂灣片區的核心地段,學府路與振海大道交匯處。作為前海首拍地塊,首席商務門戶,和入市的商務綜合體,集前海三大于一身,融匯集團18年商務地產開發經驗。
.jpg)
卓越前海壹號室內軟裝設計外景圖
卓越前海壹號由4棟超甲級寫字樓及2棟頂級行政公寓組合而成,是集辦公、居住、購物和休閑為一體的一站式平臺,前海首席的商務綜合體,將為前海企業提供先進駐前海的機會。
周邊配套:
酒店:華爾道夫酒店(規劃中)、喜達屋酒店(規劃中)
商業:8萬㎡華潤購物中心
公園:學府社區公園
.jpg)
.jpg)
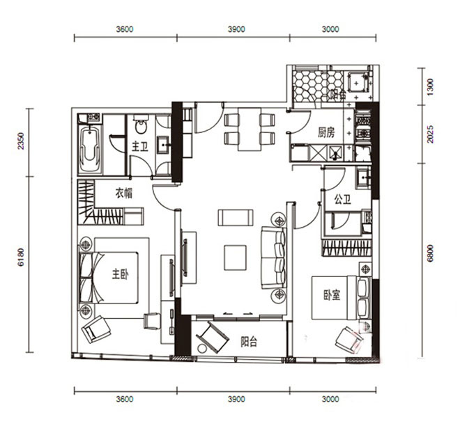
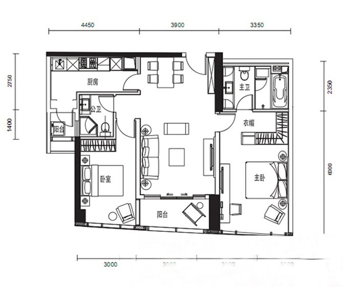
卓越前海壹號室內軟裝設計戶型圖
.jpg)
.jpg)
.jpg)
卓越前海壹號室內軟裝設計樣板房
【例外軟裝】:用專業打造溫馨宜居的個性居家空間,讓家為您的品位代言!
【例外軟裝】:解讀空間需求的專業軟裝設計公司,合理搭配軟裝配飾,提供專業家居軟性裝飾方案,為您的居家空間私人定制!