仙湖山莊現代中式別墅軟裝設計動態
發布人:Webmaster發布時間:2016-04-27閱讀數 (1750)
仙湖山莊二期鳳凰谷為現代中式別墅設計,雄踞城市高華地脈,東倚31.8平方公里梧桐山國家森林公園,北接仙湖植物園,坐擁8800畝稀缺生態景觀;比鄰城市一級核心圈層羅湖金融中心圈,輕松駕馭都市生活;純粹高尚別墅社區,名流薈萃之地,彰顯尊崇顯赫地位。
.jpg)
.jpg)
仙湖山莊現代中式別墅軟裝設計外景圖
“鳳凰谷”傳承了中國傳統院落文化,結合中式建筑特有的坡屋頂與平頂退臺,使傳統建筑元素融合于宅院、圍墻、門坊等建筑細節總,營造濃郁的傳統人文氣息。中式別墅“三進院落”的特點,每戶分為:前庭、中庭、后院,和中國人的飲食起居,待客居住的生活特征相契合。
周邊配套
銀行:中國銀行、中國建設銀行、中國招商銀行、中國工商銀行、中國農業銀行
醫院:羅湖蓮塘人民醫院
學校:幼兒園:鵬興幼兒園、華育幼兒園、萊茵幼兒園、華景園幼兒園、鹿茵中英文幼兒園中小學:羅湖外國語學校、蓮塘小學、鵬興實驗學校、蓮南小學
商場:歲寶百貨、民潤超市、南康百貨、佳旺角購物城醫院:羅湖蓮塘人民醫院
郵局:蓮塘郵局
公 園:珍稀樹木園、萌生植物區、松柏杜鵑區、仙湖植物園
其他:肯德基、麥當勞
.jpg)
.jpg)
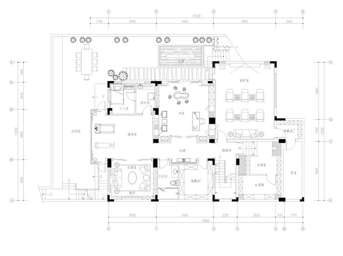
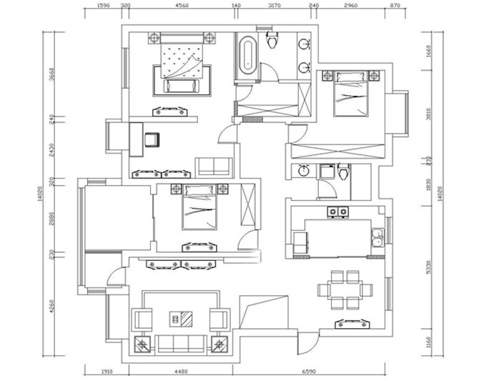
仙湖山莊現代中式別墅軟裝設計戶型圖
.jpg)
.jpg)
.jpg)
.jpg)
仙湖山莊現代中式別墅軟裝設計樣板房