深圳沙河紅樹別院新別墅設計動態
發布人:Webmaster發布時間:2016-04-28閱讀數 (1795)
深圳沙河紅樹別院位于高新技術園中區,地處華潤城中心,東臨大沙河及名商高爾夫球場,緊挨市政迎賓大道沙河西路,南觀紅樹灣遠景,西面為成片的荔枝林,北面為銅鼓嶺半山及建成的新世界豪園。北可至北環,10分鐘抵達西部通道直達香港。
.jpg)
.jpg)
.jpg)
深圳沙河紅樹別院新別墅設計外景圖
紅樹別院別墅設計,媲美萬象天地的top級住宅,居華潤城中央,出則閱城市繁華,入則享私屬靜謐。
周邊配套:
學校:南山外國語學校大沖學校,科苑幼兒園,科技幼兒園,灣畔幼兒園,南山星河學校,深圳市南山中英文學校;中小學:南山外國語學院、深圳大學、南山實驗學校、虛擬大學城、西麗大學、白石洲中英文學校、新塘小學、珠光小學;
購物:嘉華購物城,惠民商店(銅鼓路),惠民商店(銅鼓路),萬店通,711便利店(康佳大廈店),金朗峰便利;
醫院:深圳市同信醫院,國力口腔門診部,郭春霞口腔診所(創維店),天使家園五洲醫院特殊兒童康復中心;
生活:寶生村鎮銀行總行營業部,上海銀行24小時自助銀行(深圳科技園支行),上海銀行24小時自助銀行(深圳科技園支行),上海銀行(深圳科技園支行);
娛樂:科苑公園,籃球公園,帝國私人電影院,科技園社區公園,大沙河公園-祈福廣場,雅圖影院(白石洲店);
餐飲:小葉羽咖啡,肯德基(德賽店),三湘人家(德賽科技店),雪牛主題餐廳,星巴克咖啡(深圳康佳大廈分店),面鼎香(TCL店);
.jpg)
.jpg)
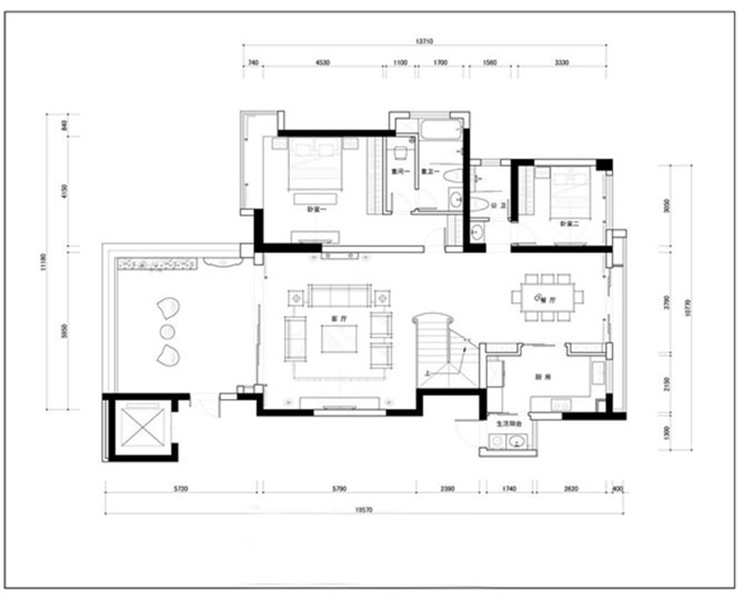
深圳沙河紅樹別院新別墅設計戶型圖
.jpg)
.jpg)
.jpg)
.jpg)
深圳沙河紅樹別院新別墅設計樣板房