深圳燕晗山苑室內軟裝設計新動態
發布人:Webmaster發布時間:2016-06-02閱讀數 (1545)
深圳室內設計燕晗山苑所在的6平方公里華僑城,是目前深圳純粹、醇熟的豪宅片區,周邊擁26萬平米燕晗山、6萬平米蒂諾山、4萬平米天鵝湖、7萬平米燕棲湖等優質山湖資源,項目周邊還配套有3大美術館、4大主題會所、4個主題公園、5大主題酒店6大公共空間、8個教育品牌。
.jpg)
.jpg)
深圳燕晗山苑室內軟裝設計外景圖
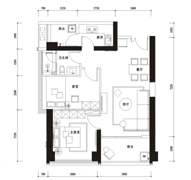
深圳燕晗山苑室內設計空間約90㎡、230㎡產品在華僑城體系中屬于稀缺產品線,產品附加品牌精裝。燕晗山苑為1棟2個單元,41層240個單位,面積約90(兩房)、230㎡(四房)。
.jpg)
.jpg)
深圳燕晗山苑室內軟裝設計戶型圖
.jpg)
.jpg)
.jpg)
深圳燕晗山苑室內軟裝設計樣板房