華僑城豪宅區懿德軒室內軟裝設計新動態
發布人:Webmaster發布時間:2016-08-16閱讀數 (1457)
懿德軒位于深圳著名豪宅區華僑城,毗鄰24公頃燕晗山公園、燕棲湖、天鵝湖及多個著名高爾夫球場,區內綠化率高。每戶均有過2000平方尺私家花園,近千尺露臺,客廳樓高約14米,空間廣闊,內設智能電梯,透光雙層地下室,是別墅中的王者,是收藏家眼中的稀世藝術品。
.jpg)
.jpg)
.jpg)
華僑城豪宅區懿德軒室內軟裝設計外景圖
教育上,中央教育科學研究所南山附屬學校(初中、小學),華僑城中學、小學,華僑城幼兒園、馬榮教育機構華僑城幼教中心、新愛嬰&冠蒙早教中心、華僑城體育中心等近在咫尺;
出行上,智慧廣場商業中心、益田假日廣場、歐洲城商業、山姆會員店、沃爾瑪、沙河世紀假日廣場、京基百納廣場、百佳超市、銅鑼灣Shopping Mall、波托菲諾內部商業街區等環伺左右;
文化上,項目周邊藝術氛圍十分濃厚,何香凝美術館、華·美術館、OCT當代藝術中心即在項目周邊,唾手可得;更有OCT-LOFT 華僑城創意文化園、華僑城·歡樂海岸等文化配套設施,氤氳人文。
醫療上,華僑城醫院、香港大學深圳醫院、深圳濱海醫院(規劃中)等高等醫院,提供佳服務;此外,項目更毗鄰歡樂谷、世界之窗、燕晗山公園、錦繡中華、中國民俗文化村等主題公園。
周邊配套:
學校:項目所屬學區:中央教育科學研究所南山附屬學校(初中、小學);
中學:華僑城中學;
小學:華僑城小學;
幼兒園:華僑城幼兒園、馬榮教育機構華僑城幼教中心、新愛嬰&冠蒙早教中心
酒店:威尼斯酒店 、洲際酒店、奧斯廷酒店、威斯汀酒店、博林諾富特酒店
商業:智慧廣場商業中心、益田假日廣場、歐洲城商業、山姆會員店、沃爾瑪、沙河世紀假日廣場、京基百納廣場、百佳超市、銅鑼灣Shopping Mall、波托菲諾內部商業街區
餐飲:丹桂軒、麥善坊、舞鶴、華僑城食街、酒吧街、普語堂茶社等
銀行:中國農業銀行、深發展銀行、建設銀行、中國銀行、中國工商銀行、交通銀行、招商銀行等
醫院:華僑城醫院、香港大學深圳醫院、深圳濱海醫院(規劃中)
郵政:沙河郵局
公園:歡樂谷、世界之窗、燕晗山公園、錦繡中華、中國民俗文化村
藝術三角:何香凝美術館、華·美術館、OCT當代藝術中心
文化配套:OCT-LOFT 華僑城創意文化園、華僑城·歡樂海岸
其他:華僑城體育中心
.jpg)
.jpg)
.jpg)
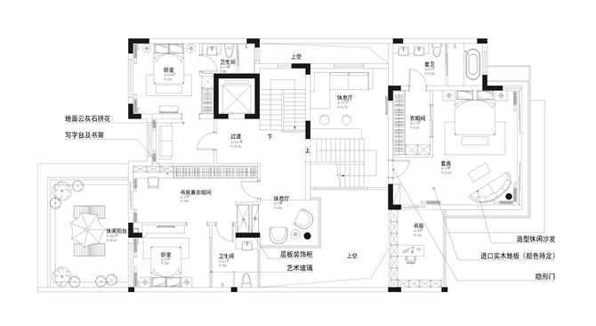
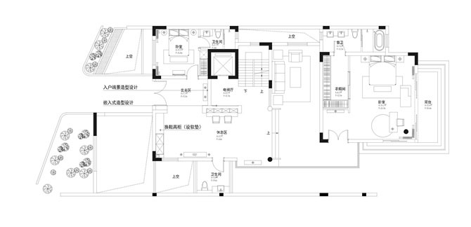
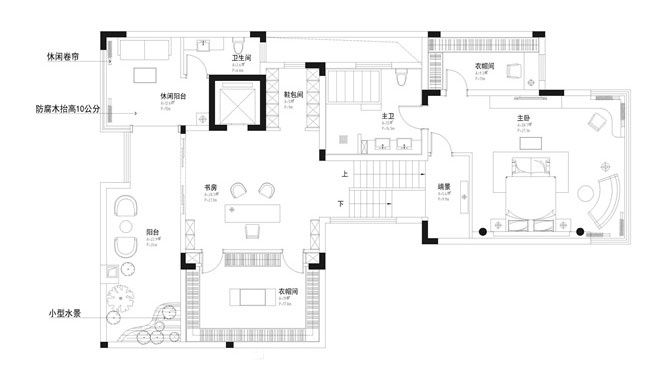
華僑城豪宅區懿德軒室內軟裝設計戶型圖
.jpg)
.jpg)
.jpg)
華僑城豪宅區懿德軒室內軟裝設計樣板房