深圳中心·天元豪宅室內軟裝設計新動態
發布人:Webmaster發布時間:2016-08-13閱讀數 (1378)
深圳中心·天元位于深圳中心區東南側,北臨深南大道,南至福華三路,坐擁深圳政治、金融、企業總部、商業消費、人文藝術、交通樞紐、資訊、社交、醫療等中心,為百萬綜合體深圳中心的住宅部分。擁有深圳中心不僅擁有深圳繁華,更擁有33年深圳的歷史“滄桑”與厚重人文沉淀。
深圳中心·天元豪宅室內軟裝設計外景圖
深圳中心·天元高層南望香港連綿山脈和海灣,北賞“深圳公園之魂”蓮花山公園和連綿百公里的塘朗山脈,東向極目遠眺大城美景,西向就近俯瞰市民中心廣場。從建筑規劃到產品設計,天元汲取了倫敦、巴黎、東京、紐約等全球四大都會的精華,采集了全球著名豪宅的經典樣板,將為客戶提供“高效率、高配置、高舒適”的居住體驗。
周邊配套:
教育:深圳崗廈小學,深圳崗廈小學東區,深圳市崗廈幼兒園,彩福幼兒園,福田區機關二幼藝術培訓中心,福田區機關第二幼兒園;
醫院:兒童醫院、北大醫院、文山社區健康服務中心,福山社區健康服務中心,深圳中山醫院,深圳市彩田醫院,海濱社區健康服務中心;
銀行:中國光大銀行24小時自助銀行,中國光大銀行彩田支行,交通銀行深圳彩田支行,崗廈自助銀行,中國郵政儲蓄銀行ATM;
文化:會展中心、市民中心、少年宮、美術館、音樂廳、書城、當代藝術中心、博物館;
公園:蓮花山公園、中心公園、市民廣場;
酒店:中心區擁有四季、麗茲卡爾頓、香格里拉、喜來登、馬可孛羅好日子5家世界五星級酒店。
購物:5大商業環繞:cocopark/連城新天地/怡景中心城/皇庭廣場/卓越intown。
內部配套:
商業:30萬平方米的Shopping-mall
學校:雙語小學和國際幼兒園的教育
其他:文天祥紀念館
公園:Abclshj
學校:深圳市福田區崗廈小學
.jpg)
.jpg)
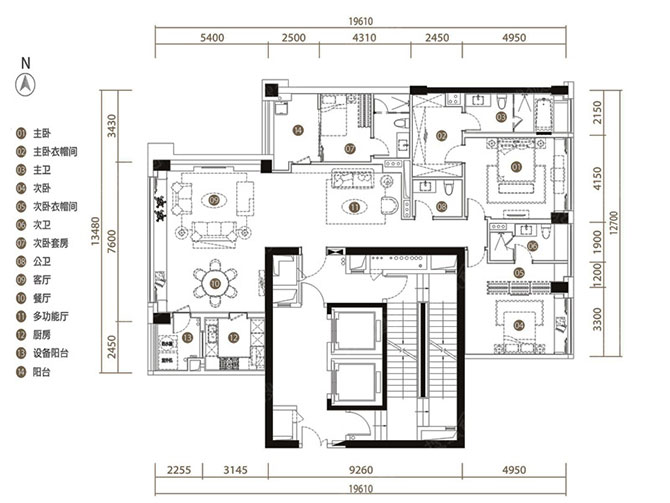
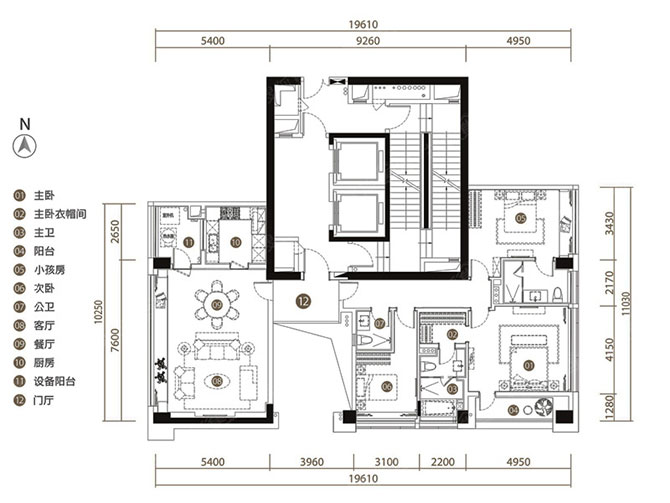
深圳中心·天元豪宅室內軟裝設計戶型圖
.jpg)
.jpg)
.jpg)
深圳中心·天元豪宅室內軟裝設計樣板房