新世界名鐫豪宅室內軟裝設計新動態
發布人:Webmaster發布時間:2016-11-14閱讀數 (1379)
新世界名鐫(譽名別苑)位于寶安區新安街道尖崗山片區,規劃建設聯排及雙拼別墅,西側為曦城三路,南側為待建城市公園用地。在廣深高速寶安出口曦城山地小鎮的入口處,曦城擁有自己的商業中心——VIVI TOWN目前正在建設中。 項目占地6.8萬㎡,商業區包括山頂會所、山頂道酒店式公寓、商業街及酒店式公寓。
.jpg)
.jpg)
.jpg)
.jpg)
新世界名鐫豪宅室內軟裝設計外景圖
深圳西部廣深高速北側,寶安出口處。周圍主要干道為廣深高速、西鄉大道、107國道、寶石路、留仙一路、留仙二路;可通往市區、機場、寶安城區、石巖、廣州、惠州等方向。目前正在規劃的地鐵一號延長線,即從世界之窗到深圳寶安機場的地鐵一號線沿線經過本項目。
周邊配套:
休閑:山地高爾夫球場
內部配套:
中小學:九年制雙語學校
幼兒園:國際雙語幼兒園
綜合商場:5萬平方米商業區
公園:鐵崗山
學校:深圳市寶安區寶龍學校
.jpg)
.jpg)
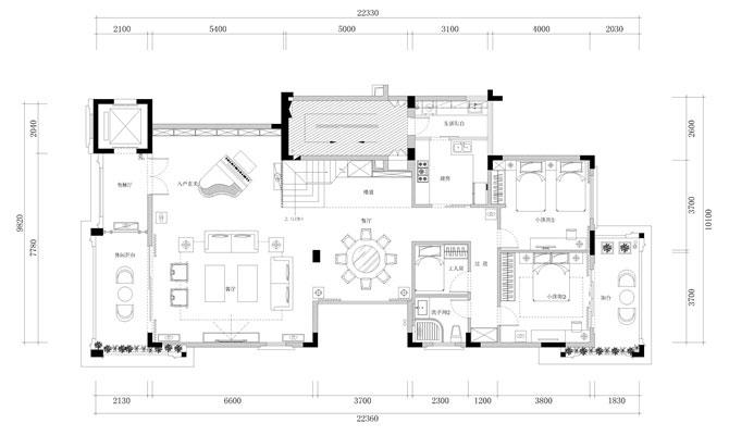
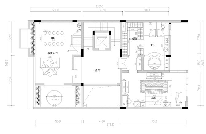
新世界名鐫豪宅室內軟裝設計戶型圖
.jpg)
.jpg)
.jpg)
新世界名鐫豪宅室內軟裝設計樣板房