半山海景蘭溪谷室內軟裝設計新動態
發布人:Webmaster發布時間:2016-11-19閱讀數 (1314)
半山海景蘭溪谷二期位于蛇口半山區沿山路東側,西依大南山,東眺深圳灣,緊鄰發展中的海上世界金融區,山海相伴,繁華相隨。蘭溪谷二期規劃以人為本,依據現有地勢形成扇形坡地布局,景觀開揚。項目室內設計力求建筑空間和自然環境和諧,特別規劃設置私家通道,將項目園林與錦園公園直接相連,形成以山海通道為基礎的步行景觀軸線,將大南山、項目中心園林、錦園公園、海上世界有機相連。同時通過多維全景露臺將山景、海景、城市公園景觀引入室內,一臺一景,一戶一色。
半山海景蘭溪谷室內軟裝設計外景圖
半山海景蘭溪谷戶型擁有多層次全景露臺、大轉角凸窗、星光SPA浴室、天幕泳池,匹配世家一貫堅實厚重的氣質。項目擁有半地下生態會所,與生態概念一脈相承,并擁有室內恒溫及室外常溫雙感泳池,并配合鋼屋架立面,鋁百頁與LOW-E玻璃構成的外立面。項目設計力求建筑空間和自然環境和諧,經典方正格局,通透實用;步入式凸窗,將大南山山脊引入室內;雙層通高露臺,連接山、海、園景。漫步繁華與山海間,以國際人文,國際教育,國際視野成就國際生活圈。
周邊配套:
配套:四海公園、蛇口體育中心、育才中學、半山社區中心、半山小學、明華國際會議中心、半山美倫會所
學校:九礦幼兒園,東方半島幼兒園,萌芽幼兒園,康達爾幼兒園,東方半島小學,華茂雙語幼兒園,大芬幼兒園。
購物:益友24小時便利連鎖店,福之樂生活超市,福之樂超市,川漢商行,美宜佳(新春苑店),喜客來NO.552,潤森五金商店。
醫院:深圳百合醫院住院三部,深圳百合醫院住院二部,深圳百合醫院住院一部,深圳百合醫院,深圳市龍崗區第二人民醫院院前科。
銀行:中國建設銀行ATM,中國建設銀行ATM,上海銀行24小時自助銀行(桔子坑),上海銀行24小時自助銀行(桔子坑),中國郵政儲蓄銀行ATM(桔子坑)
娛樂:石芽嶺信義體育公園分會場,石芽嶺信義體育公園,一帆影城,文景社區公園,天譽國際影城,ZCV布吉影城(慢城店)。
餐飲:半山海鮮酒樓,品尚品概念餐廳,高佬餐廳,源和燉品樓,福祥隆海鮮火鍋,好心晴蛋糕坊(大芬店),重慶小面。
內部配套:
公 園:大改革開放紀念公園、大南山公園
.jpg)
.jpg)
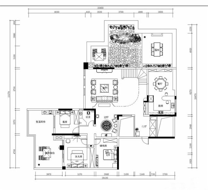
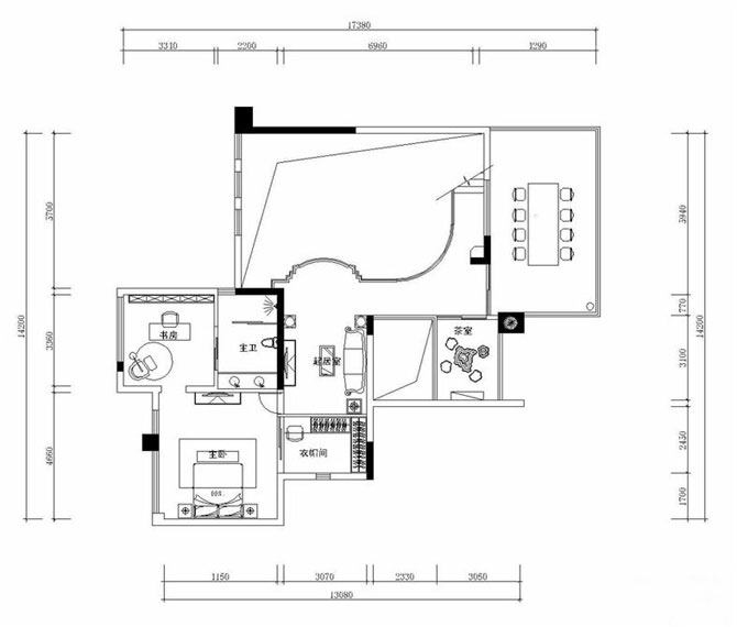
半山海景蘭溪谷室內軟裝設計戶型圖
.jpg)
.jpg)
.jpg)
.jpg)
半山海景蘭溪谷室內軟裝設計樣板房