東部華僑城天麓九區豪宅軟裝設計新動態
發布人:Webmaster發布時間:2017-02-15閱讀數 (1239)
東部華僑城由華僑城集團投資35億興建的大型綜合生態旅游度假區,坐落于中國深圳大梅沙,項目堅守“讓都市人回歸自然”的開發宗旨,在山海間巧妙規劃了大峽谷、茶溪谷、云海谷三大主題。山間規劃有別墅,1號地塊別墅22幢獨立別墅坐落于大峽谷景區東側陡峭的山脊和山谷綠化帶間的坡地上,綿延起伏的山巒、郁郁蔥蔥的植被、壯闊的海景都是1號地塊的優美自然景觀。
.jpg)
.jpg)
東部華僑城天麓九區豪宅軟裝設計外景圖
東部華僑城天麓在山海間巧妙規劃了大俠谷、茶溪谷、云海谷三大主題區域,集生態動感、休閑度假、戶外運動等多項文化旅游功能于一體,體現了人與自然的和諧共處。東部華僑城地產天麓依托主題生態公園,是有別于傳統物業的低密度山海大宅,價值連城,以“平方公里”為價值單位,建構于東部華僑城9平方公里之上。幕天席地,天工開物,東部華僑城天麓執首中國山海大宅。
周邊配套:
公園:大梅沙、小梅沙海濱公園、東部華僑城;
學校:中山實驗學校、紫綬園小學、和平街一中分校;
銀行:沙頭角中行、華僑城招行、華僑城農行、深發展行、沙頭角建行、羅湖建行、交通銀行、南洋銀行和工行。
內部配套:
配套:大峽谷、藝術大地、度假酒店、溫泉SPA中心;
公園:云海谷體育公園
.jpg)
.jpg)
.jpg)
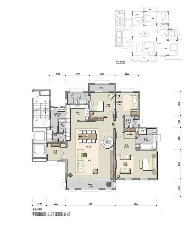
東部華僑城天麓九區豪宅軟裝設計戶型圖
.jpg)
.jpg)
.jpg)
東部華僑城天麓九區豪宅軟裝設計樣板房