深圳萊蒙水榭山別墅軟裝設計新資訊
發布人:Webmaster發布時間:2015-09-29閱讀數 (1482)
項目為深圳市目前少有的純TOWNHOUSE小區。離塵不離城。項目背山面水,為城市中心難得的居家之地。南北兩側是原生植物覆蓋的山體,東南面是自然原生的約17萬平米的水庫。深圳首個北美風格的純別墅小區。注重建筑細節,用材考究,沉穩大氣;內部空間緊湊合理,具有高舒適性和高實用性。以自然生態為原則的小區規劃:充分尊重地形,利用地塊山體背景及原有地形高差,通過對住宅的精心巧妙的布局,使盡可能多的住宅朝向水庫及原山,,形成依山傍水的立體空間結構。園林規劃,在充分尊重地塊原生自然景觀資源的基礎上,形成與建筑體相協調的粗獷、自然與細膩的園林景觀。路燈、入戶門、景觀小品等融合中國古老的青花瓷元素,結合西方物件的精工,為項目奪身定制。

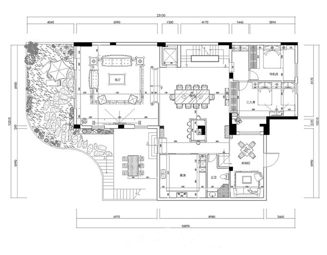
深圳萊蒙水榭山別墅軟裝設計戶型圖


項目配套
公園:黃公望國家森林公園
小區規劃為高層景觀公寓、低密度排屋及超獨棟別墅
交通狀況
自駕:北山路-虎跑路-之江路-杭富沿江公路; 中河高架-復興路-之江路-杭富沿江公路 公交:乘坐富陽新南站-杭州城站 , 在東洲工業園區站下車,步行3分鐘左右