【新簽約】深圳仁山智水別墅室內軟裝設計
發布人:Webmaster發布時間:2016-08-30閱讀數 (2499)
仁山智水位于深圳CBD中軸之上、龍華新區--鷺湖國際住區核心地段,毗鄰規劃擬建的龍華新區行政科技術文化中心,南面為寶安高新科技園區,北面為國家一級水源保護地,面達廣達500畝的鷺湖及原生態山水森林,毗鄰世界大高爾夫球會--觀瀾高爾夫,該區域將由四大開發商城建、招商、金地、和黃聯手打造 “鷺湖國際住區”,是繼銀湖、華僑城、香蜜湖豪宅之后,深圳城市主軸線之上的第四代低密度高尚住宅區,有望形成百萬平米級的低密度純豪宅生活圈。
深圳仁山智水別墅室內軟裝設計
仁山智水花園項目交通便捷,機荷高速、梅觀高速確保您十五分鐘直達龍華,半小時直達深圳中心區,建設中的地鐵四號線將大大拉近觀瀾與深圳中心區的距離,讓住戶盡享中心區完善配套與繁華生活的同時,又與城市的喧囂保持距離,充分演繹全新的尊崇生活理念。
.jpg)
深圳仁山智水別墅室內軟裝設計負一層戶型圖
.jpg)
深圳仁山智水別墅室內軟裝設計負二層戶型圖
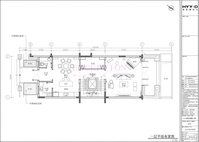
.jpg)
深圳仁山智水別墅室內軟裝設計一層戶型圖
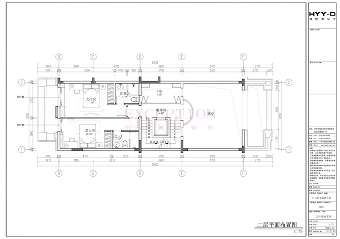
.jpg)
深圳仁山智水別墅室內軟裝設計二層戶型圖
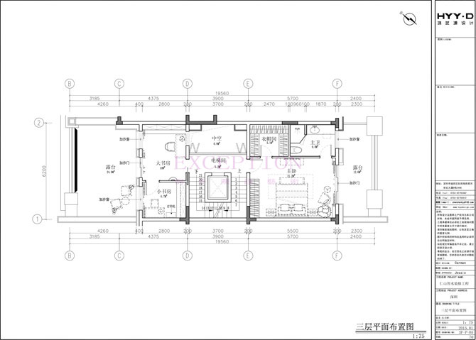
.jpg)
深圳仁山智水別墅室內軟裝設計三層戶型圖
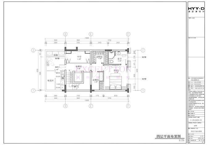
.jpg)
深圳仁山智水別墅室內軟裝設計四層戶型圖