【新簽約】深圳瑞河耶納別墅室內軟裝設計
發布人:Webmaster發布時間:2016-12-06閱讀數 (2861)
瑞河耶納地處深圳紅樹灣填海區,白石洲路、白石三道、深圳灣三路、深圳灣四路之間,位于華僑城南部填海中心地段,地段北側內湖為紅樹林風景保護區,風景優美、四季候鳥翩翩起舞。并與華僑城世界之窗、民俗村風景區隔湖相望。地段南側近濱海大道,與深圳灣遙遙相望,根據深圳市政府對華僑城南部填海地段的規劃,地段的西南側為大型社區中心公園,西側為城市綠化帶。地段優越的景觀環境是該項目具有得天獨厚的景觀資源。
深圳瑞河耶納別墅室內軟裝設計外景圖
瑞河耶納規劃有TONWHOUSE、花園洋房、小高層三種建筑形式。在規劃布局方面既良好的利用了世界之窗、內湖和紅樹灣的景觀,又充分考慮到現代濱海城市生態、自然的特點,將內部規劃與外部環境進行了的結合。
湖畔豪宅,享有北部內湖景觀和南部小河景觀。多層洋房區位于地段中央四面環水的島上,其北面為潺潺流水的小河,南面為開闊的人工湖,其特色定位于島上洋房。小高層區位于地段西、南兩側,由四組院落式的組團構成。
.jpg)
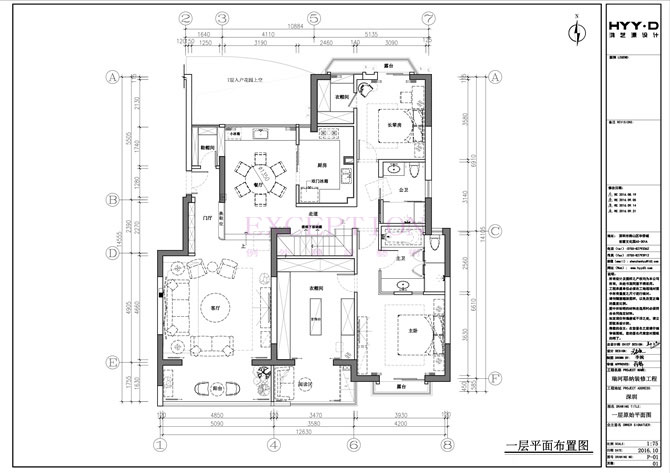
深圳瑞河耶納別墅室內軟裝設計一層戶型圖
.jpg)
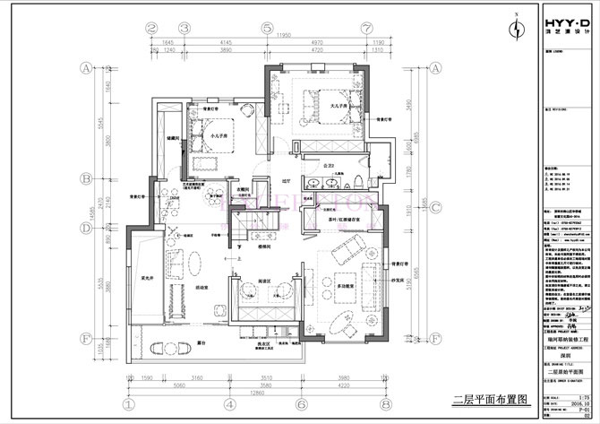
深圳瑞河耶納別墅室內軟裝設計二層戶型圖