深圳半島城邦三期新室內設計動態
發布人:Webmaster發布時間:2016-05-12閱讀數 (1699)
半島城邦三期位于深圳市南山區蛇口片區,半島城邦總用地面積約30萬㎡,總建筑面積逾100萬㎡,共分5期開發,半島城邦三面環海,可享一線海景景觀資源,打造現代簡約的濱海建筑群。未來社區將集尊貴會所、星級影院、健身中心、美容SPA、游泳池、超市、風情商業街、特色餐飲、國際教育等于一體,更全國首創在社區配備國際游艇俱樂部。
.jpg)
深圳半島城邦三期室內軟裝設計外景圖
半島城邦三期位于整個半島城邦小區東側,由7棟超高層組成,三期東部望向大海,北部背靠山體、景觀資源存在很大優勢,內部為住宅,外圍為商業,景觀設計重點考慮外側樓棟海景視野以及內部住宅花園的舒適性,功能合理性,通過景觀設計提升居住品質。
周邊配套:
中小學: 南山外國語學校(濱海分校);育才學校、蛇口中學、蛇口小學名校
綜合商場:海上世界、花園城、海岸城、寶能all city、蛇口市場、人人樂、天虹商場、海雅百貨、沃爾瑪、華潤萬家
銀行:平安銀行、招商銀行、建設銀行
醫院:蛇口人民醫院、聯合醫院
資源配套:大小南山、蛇口山、四海公園、深圳灣公園、十五公里濱海休閑帶
其他:蛇口碼頭、深圳灣口岸
小區內部:IMC國際游艇會:800米游岸長堤、575個游艇泊位,人文創意商業街,海岸泳池、海景會所,健身吧、網球場,蒙特梭利國際幼兒園、南山外國語學校(濱海分校)
.jpg)
.jpg)
.jpg)
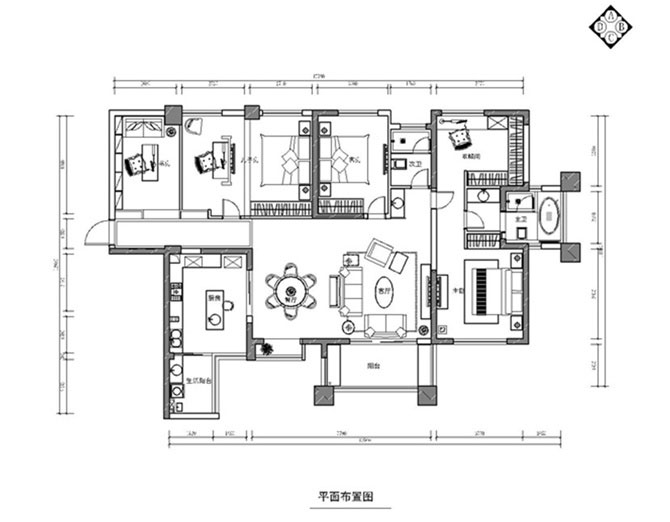
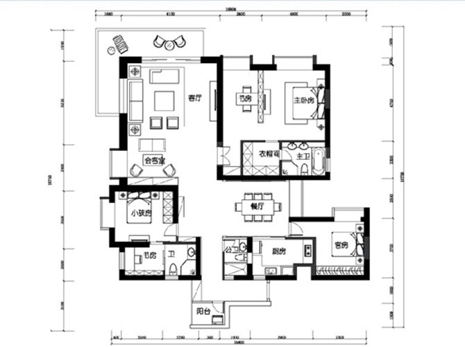
深圳半島城邦三期室內軟裝設計戶型圖
.jpg)
.jpg)
.jpg)
深圳半島城邦三期室內軟裝設計樣板房