海上世界雙璽別墅室內軟裝設計新動態
發布人:Webmaster發布時間:2016-05-11閱讀數 (1708)
海上世界.雙璽位于深圳繁華國際濱海休閑片區--“海上世界”綜合體,東臨深圳灣,南臨濱海長廊及一望無垠的深圳灣海景;西靠海上世界女媧濱海公園、文化藝術中心、希爾頓酒店;北靠環船廣場,遠觀大南山,背山面海,城市環抱,位置優越。海上世界雙璽超高層和四棟聯排別墅設計,配有部分商業裙樓,與海上世界無縫連接。
.jpg)
.jpg)
.jpg)
海上世界雙璽別墅室內軟裝設計外景圖
海上世界.雙璽及太子灣郵輪母港,是一個集餐飲、娛樂、購物、酒店、辦公、藝術、度假、休閑、居住于一體的國際濱海休閑片區。項目享用深珠港澳生活圈,毗鄰前海,一小時涵蓋五大機場,深圳灣跨海大橋五分鐘切換深港。雙璽項目依山傍海,處于大南山到海岸線的綠色開放空間之中,并可多角度盡享大南山、深圳灣等景觀。
周邊配套:
自然景觀:大南山、香港青山、深圳灣;
都市景觀:太子灣、海上世界廣場;
醫院:蛇口人民醫院;
學校:國際學校、深圳市南山區蛇口中學、深圳市海灣小學
綜合商場:海上世界、太子廣場、夢工坊、太子灣廣場(規劃中)、花園城中心、百佳超市等;
銀行:招商銀行、中國銀行、民生銀行、建設銀行、交通銀行、工商銀行、南洋商業銀行、農業銀行;
其他:希爾頓酒店、南海酒店、雅詩閣酒店、泰格公寓、鴻隆公寓、美侖會所、海上世界、太子灣廣場
.jpg)
.jpg)
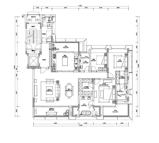
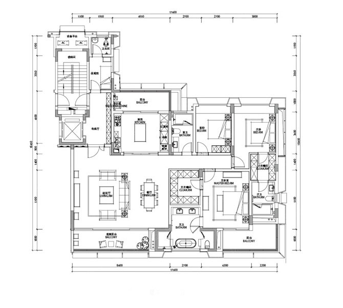
海上世界雙璽別墅室內軟裝設計戶型圖
.jpg)
.jpg)
.jpg)
海上世界雙璽別墅室內軟裝設計樣板房