【新簽約】香山美墅別墅軟裝設計
發布人:Webmaster發布時間:2016-11-07閱讀數 (4042)
香山美墅位于深圳市南山區華僑城片區,東面為香山里等高檔小區,東南面為成熟的波托菲諾社區,南面香山西街一路之隔為白石洲,西面為沙河東路及名商高爾夫球場,北面為北環大道,交通便利,地理位置優越。
.jpg)
.jpg)
.jpg)
香山美墅別墅軟裝設計外景圖
項目構建于華僑城6平方公里人文生態社區的平臺之上,享有華僑城完善的配套設施及生態人文資源。周邊環境優雅、交通便利、配套設施齊全,是華僑城核心區域住宅項目。香山美墅后續待開發用地共占地面積約18萬㎡,總建筑面積約70萬㎡,屬于深圳市核心區域罕見的非舊改類的大型居住社區。產品類型多樣,含聯排住宅、合院住宅、疊拼住宅、小高層住宅及超高層住宅;其它用地產品為超高層住宅。
香山美墅統一規劃設計社區公共配套,其中包括社區服務站、社區居委會、社區警務室、社區健康服務中心、公交首末站、商業服務設施及居住小區級文化室。
.jpg)
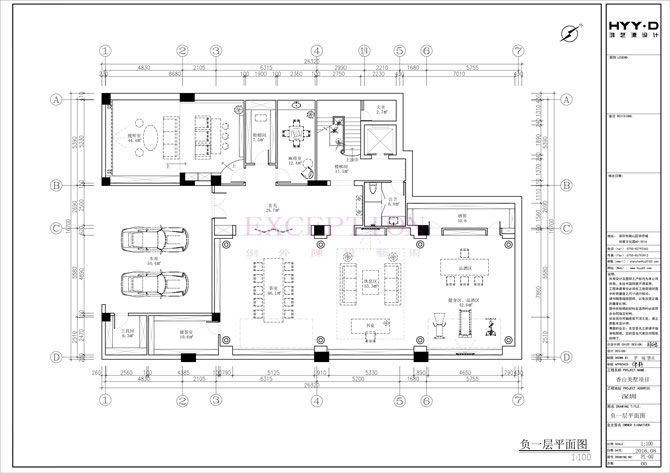
香山美墅別墅軟裝設計負一層戶型圖
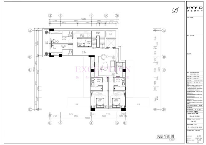
香山美墅別墅軟裝設計夾層戶型圖
.jpg)
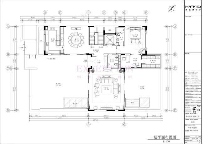
香山美墅別墅軟裝設計一層戶型圖
.jpg)
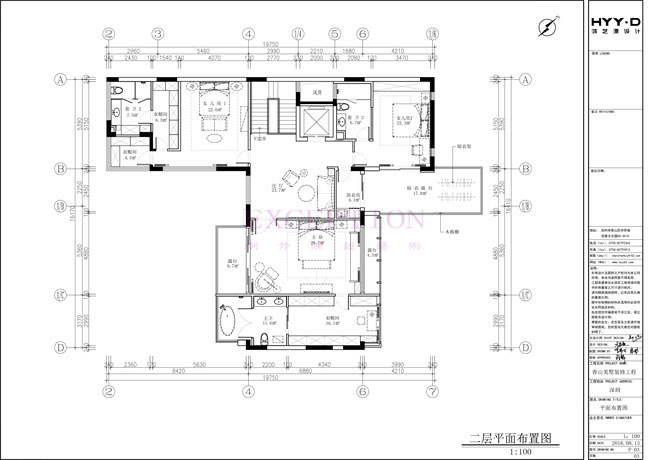
香山美墅別墅軟裝設計二層戶型圖