【新簽約】波托菲諾天鵝堡復式室內軟裝設計
發布人:Webmaster發布時間:2016-11-16閱讀數 (2310)
波托菲諾一期--天鵝堡地處南山區僑香路,北臨北環大道,南靠深圳歡樂谷,東接天鵝湖,環境優美,交通便利,周邊配套設施完善,區內配套完備,配備高爾夫球場,及生活娛樂于一體。天鵝堡以"依山傍水,親近自然"為設計原則。一梯四戶使得每個戶型都南北通透,均能俯瞰庭院中心美麗而寧靜的天鵝湖。
.jpg)
.jpg)
.jpg)
波托菲諾天鵝堡復式室內軟裝設計外景圖
天鵝堡以意大利小鎮Portofino為藍本,規劃有沿湖畔山的獨立別墅、Townhouse、多層、小高層及高層等多種類型的高尚住宅;建有意大利風情商業街、水岸廣場、鐘樓、湖畔會所、景觀大道及沿湖木棧道等,營造出獨具華僑城生態人文氣息的家園生活格調。小區內林木蔥郁,鳥語花香,環境幽美,是一個極適合居住的都市桃源。是深圳純粹的大戶型項目,是華僑城旅游主題地產波托菲諾項目的一個組成部分。
.jpg)
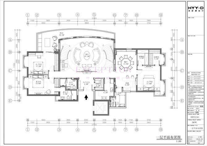
波托菲諾天鵝堡復式室內軟裝設計一層戶型圖
.jpg)
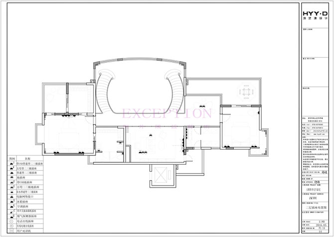
波托菲諾天鵝堡復式室內軟裝設計二層戶型圖